![]()
Glamox H30 je nova linija grijaćih panela.
Inovativni norveški radijator objedinjuje zahtjeve i dizajna i funkcionalnosti.
Modernom izvedbom i koloritom osvježava prostor pa se uklapa u raznovrsne interijere.
Jednostavnost uporabe, elegancija radijatora, optimalna iskoristivost te udobnost grijanog prostora, razlozi su zadovoljstva korisnika radijatora Glamox H30.
Glamox H30 odgovara na sve zahtjeve današnjice.
Radijatori imaju ugrađeni sigurnosni termostat (sigurnosni osigurač) koji reagira samo kada je potrebno, odnosno kad je u pitanju neki nepravilan rad samog radijatora. Npr. u slučaju pada zavjese na gornji otvor, povećanja temperature ili pak nepravilnost u instalaciji, sigurnosni osigurač će automatski isključiti radijator. Sigurnost koju pruža norveški radijator osigurava bezbrižno grijanje Vašeg stana ili kuće dok ste na poslu, a Vaša djeca u školi.
Pogodno je za vikendice gdje možete ostaviti radijatore na nižoj temperaturi i temperirati dok niste prisutni, da ne bi smrzla vodena instalacija. Pri dolasku i kasnijem boravku, lakše ćete doći do željene temperature.
Standardno je ugrađen elektronički krono-termostat koji štedi energiju.
Zaslon termostata pokazuje namještenu temperaturu lako čitljivim velikim brojkama. Pomoću tipki + i –, podešavaju se vremena i temperature grijanja svake pojedine prostorije.
Prirodnom cirkulacijom hladan zrak ulazi na donji otvor. Prelaskom preko grijača velike aktivne površine, zrak se zagrijava na temperaturu oko 75°C i izlazi na gornji otvor direktno u prostor. Ovakav princip rada ne narušava klimu u Vašem prostoru i nema dizanja prašine iz tepiha i otirača. Ove osobine čine ovaj radijator izuzetno ekološkim. Posebno je to važno za osobe koje imaju problem sa disanjem.
Norveški radijator je stvarno najbolji prijatelj Vaše životne sredine. U želji da se izbjegnu neugodni mirisi sagorjevanja prašine, razvijena je jedinstvena konstrukcija koja oslobađa toplinu s prednje strane radijatora i usmjerava je direktno u prostor. Ne postoje vertikalni otvori na radijatoru koji bi omogućili padanje prašine i njeno taloženje na grijaći element kada radijator ne radi.
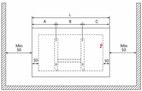
| Model | Snaga (W) | A | B | C | L |
| H30 H 04 KDT | 400 W | 137 mm | 202 mm | 135 mm | 474 mm |
| H30 H 06 KDT | 600 W | 194 mm | 202 mm | 193 mm | 589 mm |
| H30 H 08 KDT | 800 W | 202 mm | 302 mm | 200 mm | 704 mm |
| H30 H 10 KDT | 1000 W | 230 mm | 302 mm | 230 mm | 762 mm |
| H30 H 12 KDT | 1200 W | 167 mm | 605 mm | 162 mm | 934 mm |
| H30 H 14 KDT | 1400 W | 224 mm | 605 mm | 220 mm | 1049 mm |
| H30 H 20 KDT | 2000 W | 397 mm | 605 mm | 392 mm | 1394 mm |

